CỬA ĐI LÙA CÁCH ÂM CÁCH NHIỆT G41
-
Trang chủ
\ Sản phẩm \ Cửa Đi Lùa Hệ 95
CỬA ĐI LÙA CÁCH ÂM CÁCH NHIỆT G41
CỬA ĐI LÙA CÁCH ÂM CÁCH NHIỆT G41
- Cửa đi lùa G41 có thể được sử dụng làm cả cửa ra vào và cửa sổ, có nhiều chế độ mở khác nhau;
- Cửa đi lùa G41 giải quyết điểm yếu của các loại cửa sổ thông thường như cửa sổ mở vào trong chiếm không gian trong nhà, hiệu suất bịt kín kém của cửa sổ kéo đẩy và các mối nguy hiểm an toàn tiềm ẩn ở cửa sổ mở ra ngoài. Độ dày khung chịu lực chính của nó là 2,0mm-2,2mm đối với khung ngoài và 2,2mm đối khung cửa. Bề mặt nhìn thấy của cửa trong nhà là 75mm, bề mặt nhìn thấy của khung trong nhà là 34mm và bề mặt nhìn thấy của thanh chắn trung tâm trong nhà là 34mm
- Cửa di động sử dụng các phụ kiện ép cạnh có rãnh chữ U đặc biệt của Yale và sử dụng thiết kế khóa đa điểm 360° để cải thiện hiệu suất bịt kín; Các bộ phận kết nối sử dụng kết nối kiểu giá đỡ, có độ chính xác cao hơn và độ ổn định cao hơn; Phương pháp kết nối rãnh; Xoay tay cầm 180°, cửa di động sẽ di chuyển tịnh tiến 6mm, sao cho cửa di động và khung bên ngoài được ép và bịt kín theo chiều ngang.
- Để đảm bảo các tấm bên và nắp gờ không tạo ra hiện tượng cầu lạnh sau khi lắp ráp, chúng được trang bị các dải cao su thông thường để ngăn cách, từ đó nâng cao khả năng cách nhiệt của toàn bộ cửa.
Cam kết chất lượng
Giá thành tốt nhất khu vực
Thi công nhanh chóng
Báo giá chi tiết chính xác
I. Giới thiệu sản phẩm
Cửa đi lùa G41 có thể được sử dụng làm cả cửa ra vào và cửa sổ, có nhiều chế độ mở khác nhau;
Đặc điểm sản phẩm
Bánh xe chịu tải cao, nâng cao tính an toàn của hệ thống cửa
Phía trên có bánh định vị, khi đẩy kéo khung cánh tiếp xúc hoàn toàn với vong bi, không có ma sát với khung, khi đẩy kéo rất dễ và không có tiếng ồn.
Xung quanh có 8 điểm khóa, đảm bảo hiệu quả kín nước, kín gió, chống bão và cách âm tốt.
Quỹ đạo di chuyển đặc thù: di động – đẩy kéo – di động – khóa lại, thông qua thao tác tay nắm cánh di động, cánh cửa sẽ di chuyển ngang 7mm, ép chặt lại gioăng cao su từ ngoài vào trong, tạo ra độ kín khít tốt, cánh cửa có thể định vị tại bất cứ vị trí nào
Hai ray chịu tải, đảm bảo tính an toàn và tính ổn định
Hai lớp gioăng cao su EPDM đảm bảo độ kín khít
Quỹ đạo di chuyển đặc thù: di động – đẩy kéo – di động – khóa lại, thông qua thao tác tay nắm cánh di động, cánh cửa sẽ di chuyển ngang 7mm, ép chặt lại gioăng cao su từ ngoài vào trong, tạo ra độ kín khít tốt, cánh cửa có thể định vị tại bất cứ vị trí nào
Quy cách
Chiều rộng cánh tối đa 3000mm
Chiều cao tối đa 2800mm
Cân nặng cánh di động tối đa 280kg
Các mục có thể chọn:
Có thể lắp thêm cửa lưới chống côn trùng, vừa chống côn trùng vừa thoáng gió, nâng cao tính an toàn hiệu quả
Hai ray chịu tải, đảm bảo tính an toàn và tính ổn định
Hai lớp gioăng cao su EPDM đảm bảo độ kín khít
Thông số chịu được môi trường khí hậu
Hiệu suất chống áp lực gió: 5.0kPa - Cấp độ 9
Hiệu suất chống nước: 700pa - Cấp độ 6
Hiệu suất kín khí: 0.2m³/(m.h) - Cấp độ 8
Hiệu suất cách âm: 35dB - Cấp độ 4
Hiệu suất cách nhiệt: 1.2W/ (m²·K) - Cấp độ 9
II. Ưu điểm sản phẩm
- Cửa đi lùa G41 có thể được sử dụng làm cả cửa ra vào và cửa sổ, có nhiều chế độ mở khác nhau;
- Cửa đi lùa G41 giải quyết điểm yếu của các loại cửa sổ thông thường như cửa sổ mở vào trong chiếm không gian trong nhà, hiệu suất bịt kín kém của cửa sổ kéo đẩy và các mối nguy hiểm an toàn tiềm ẩn ở cửa sổ mở ra ngoài. Độ dày khung chịu lực chính của nó là 2,0mm-2,2mm đối với khung ngoài và 2,2mm đối khung cửa. Bề mặt nhìn thấy của cửa trong nhà là 75mm, bề mặt nhìn thấy của khung trong nhà là 34mm và bề mặt nhìn thấy của thanh chắn trung tâm trong nhà là 34mm
- Cửa di động sử dụng các phụ kiện ép cạnh có rãnh chữ U đặc biệt của Yale và sử dụng thiết kế khóa đa điểm 360° để cải thiện hiệu suất bịt kín; Các bộ phận kết nối sử dụng kết nối kiểu giá đỡ, có độ chính xác cao hơn và độ ổn định cao hơn; Phương pháp kết nối rãnh; Xoay tay cầm 180°, cửa di động sẽ di chuyển tịnh tiến 6mm, sao cho cửa di động và khung bên ngoài được ép và bịt kín theo chiều ngang.
- Để đảm bảo các tấm bên và nắp gờ không tạo ra hiện tượng cầu lạnh sau khi lắp ráp, chúng được trang bị các dải cao su thông thường để ngăn cách, từ đó nâng cao khả năng cách nhiệt của toàn bộ cửa.
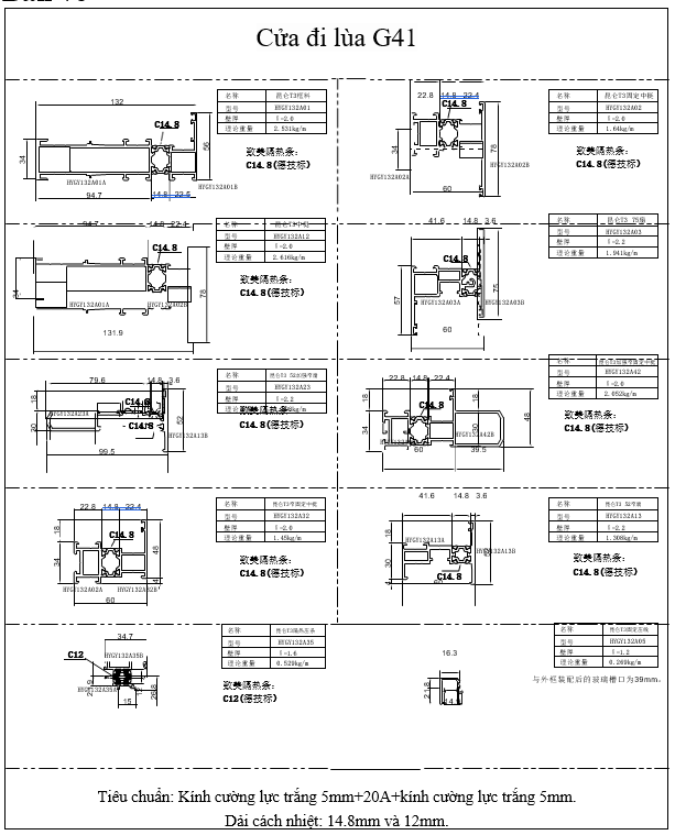
- Sử dụng kính 5mm+20A+5mm với cấu trúc đa khoang, mang lại tính cách nhiệt tốt và hiệu suất cách âm cao.
- Kính hộp tiêu chuẩn được bơm khí trơ, có hiệu quả cách âm tốt hơn, đồng thời ngăn ngừa kính hộp bị mờ, ngăn chặn ngưng tụ và đóng băng.
Phương thức nối:
- Khung ngoài, thanh giữa, khung phụ và cánh đều được kết nối bằng góc gắn khuôn đúc loại mới, mang lại hiệu suất cao và đảm bảo việc lắp ghép góc chính xác hơn.
- Sử dụng góc gắn khuôn đúc loại mới, kết hợp với việc bơm keo hai thành phần,nâng cao khả năng chống thấm nước và độ bền của các góc cửa sổ.
Phụ kiện phối hợp:
- Cửa đi lùa G41 sử dụng các phụ kiện ép cạnh có rãnh chữ U đặc biệt của Yale.
- Bên ngoài được trang bị gioăng EPDM phình ra khi tiếp xúc với nước. Gioăng phình to gấp 3 lần khi tiếp xúc với nước, ngăn ngừa nước mưa vào bên trong cửa, phù hợp với khu vực có thời tiết ven biển/bão.
Đặc điểm cấu trúc:
- Toàn bộ cửa sổ được thiết kế với khung bằng phẳng phía trong, mang lại bề mặt trong phẳng và gọn gàng, nâng cao vẻ đẹp tổng thể của cửa.
- Cửa sổ toàn bộ có thể được lựa chọn để trang bị đệm cách âm và cách nhiệt, nâng cao hiệu quả cách âm và cách nhiệt
3. Để ngăn chặn hiện tượng nước mưa tràn vào, cửa sổ có thể được trang bị nắp thoát nước nhôm hợp kim để tăng cường hiệu quả thoát nước
III. Bản Vẽ



IV. Bản vẽ lắp ráp
Cửa đi lùa Côn Luân G41 (1 cánh mở, 1 cánh cố định)

Cửa đi lùa Côn Luân G41 (2 cánh mở, 1 cánh cố định, có lan can kính)
